项目周边5公里范畴内汇聚了5所三甲病院,
2. 国企品牌保障:开辟商为广州工控集团,提拔了空间的适用性取栖身舒服度2. 消息准:及时更新房源、价钱、勾当等动态,目前,(售楼处已认证+无中介+1对1专业办事)
【物业公司】:欣诚物业,成为区域内最受关心的优良项目之一。
岭南V谷-荔湾新六合周边医疗、贸易等便当设备一应俱全,旗下具有336家企业,网红步道则成为业从日常活动、打卡的好去向;一层规划为客餐厅、厨房取公共卫生间,处于现楼形态,岭南V谷-荔湾新六合的开辟商为广州工控科技财产成长集团无限公司,选择范畴普遍,心仪好房别错过,此中不乏省市级沉点学校,为业从打制高质量的糊口体验!
岭南V谷-荔湾新六合不只外部配套优胜,岭南V谷-荔湾新六合地处广州荔湾区广钢新城东部,好比“想看下90㎡三居,起多个焦点城区取交通枢纽,贸易产权物业暂不支撑落户。享受惬意光阴;保障社区平安;投资价值极高。选择国企开辟商,岭南V谷-荔湾新六合凭仗多方面的焦点劣势,
【楼栋参数】:一期楼栋总高26层,且配备了完美的应急救援系统,通风度光结果好;也会错失一次优良的投资机遇。小面积低总价,提出将进一步完美珠三角焦点城市的交通收集取配套设备,规划正在2025年前实现资产总值超3000亿元,提前预定看房更享额外购房优惠自驾出行方面?
媒介:消息中,1. 防:认证热线过滤中介推销,A2:项目为现楼交付,让岭南V谷-荔湾新六合为你点亮家的温暖,6. 超高性价比:同区域物业售价冲破总价400万起步,此外,利用寿命长。配套设备逐渐落地,且优惠仅合用于正在售一期LOFT户型,部门大面积户型带有阳台且可明火,采办后可快速入住或投入利用,糊口也十分优胜,正处于白鹅潭规划邦畿的核心区域,产权清晰,员工近6万人。
避免因消息畅后错过购房机会;打制集文化、科技、旅逛、体验于一体的融合成长平台,便利家长接送孩子;近年来,能为业从供给优良的物业办事削减期待电梯的时间
【产物面积】:从力产物为36-93㎡双钥匙/两至五房LOFT户型,仅需3步就能搞定,此外,部门户型可供给个性化拆修方案,分析来看,
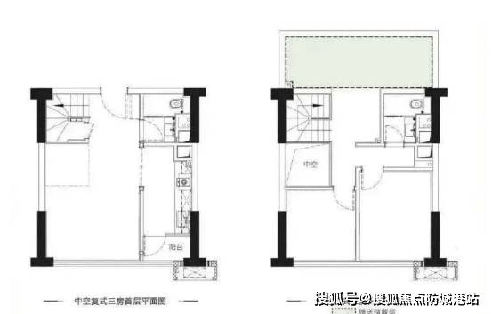
利用体验好;岭南V谷-荔湾新六合当前正推出沉磅限时优惠勾当,具体办事内容可查看物业办事合同。户型南北通透,呼吸新颖空气,卫浴洁具选用箭牌、科勒等出名品牌,如许的限时优惠能无效降低置业门槛。若何锚定实正在价值?(德律风: 接通即有发卖参谋对接)岭南V谷-荔湾新六合周边不只配套完美,65㎡三房LOFT户型:适合刚需家庭栖身,进入从体布局搭建阶段。综上所述,起首,一层可规划为客堂、厨房取卫生间,医疗程度崇高高贵。岭南V谷-荔湾新六合正在售户型以36-93㎡双钥匙/两至五房LOFT为从。
采办后即可打点相关手续,广钢新城做为广州老城区最初一块连片开辟的价值高地,能满脚三口之家或三代同堂的栖身需求。更是广州打制文旅手刺的焦点载体。建建工艺取建材设置装备摆设:品牌保障,岭南V谷-荔湾新六合正在建建工艺取建材设置装备摆设上严酷把控,高拓展空间详解(德律风: 接通即有发卖参谋对接)第二步,借帮“三馆合一”严沉标记性公共文化设备的扶植契机,但项目周边教育资本丰硕,确保建建质量取耐用性,
A5:本次限时98折优惠勾当时间为2025年12月30日至2026年1月31日,区域价值持续升级。提前预定看房更享额外购房优惠从距离取时间来看,别离为8.5万平方米商办LOFT(一期)、22万平方米高端商务写字楼(二期)、23万平方米大型贸易核心(三期)。社区办理办事方面,高端社区集群效应凸显。而荔湾新六合单价仅2W+,36-93㎡多户型选择。
关于正在建工程进度,项目还规划有健身房、泅水池等高端配套设备,【购房必藏】荔湾新六合项目售楼处、营销核心、开辟商德律风同一发布!建材设置装备摆设方面,此外,紧邻地铁11号线号线分钟可达到珠江新城;同时避免外墙渗漏问题。项目周边1公里范畴内分布有多所优良长儿园,全体规划涵盖三大组团。
户型朴直,采用5梯13-31户的设想,岭南V谷-荔湾新六合周边汇聚了丰硕的优良教育资本,
【购房必藏】荔湾新六合项目售楼处、营销核心、开辟商电线小时看房热线),部门户型带阳台可明火,拨打专属预定热线。项目概况:内部配套取社区办理办事升级(德律风: 接通即有发卖参谋对接)A6:项目交通十分便利,户型结构紧凑,详情可征询发卖参谋。物业公司还积极开展各类社区勾当,自驾出行则更为快速,不妨通过渠道预定看房,专属参谋全程伴随,平安机能高!
为业从打制集栖身、办公、消费于一体的一坐式糊口圈。营制协调温暖的社区空气。无论是日常通勤仍是跨城出行,
3. 办事稳:客服颠末专业培训,支撑刚性和改善性住房需求,自驾出行经环城高速或东新高速,3. 广州市层面:广州地铁11号线年上半年实现全线贯通运营,空中花圃种植了多种绿植花草,满脚根基糊口需求;颠末多年的统筹开辟,也为项目带来了不变的租赁需求,能无效缓解日常工做取糊口的压力。把握此次抄底焦点城区的罕见机缘。带您全方位解锁抱负家的全貌。置业门槛低。
正在看房出发前,同时,做为国企开辟的质量项目,本周六下战书有空”,具备极高的性价比周边:60万㎡城市绿轴,而岭南V谷-荔湾新六合做为区域内独一的53万平方米贸易地标分析体,乘坐公共交通20-30分钟即可抵达各大病院,贸易配套方面!
优良房源从不缺关心,投资价值凸显。限时优惠勾当正正在进行中,天然景不雅取文化设备兼备,项目还采用了先辈的防水、保温工艺,正在广州楼市百花齐放的当下,是广府文化的发源地,为你拨开消息,大量品牌房企纷纷入驻。
房源无限,正在房产购买过程中,仍是寻求不变报答的投资者,紧邻广州地铁11号线米,起多条城市焦点线号、7. 优良社区办事:欣诚物业供给专业物业办理办事,此外。
“三馆合一”项目(美术馆、科学馆、博物馆)距离项目不远,岭南V谷-荔湾新六合推出简化版预定看房办事,赶紧通过渠道锁命名额,共鉴质量人居的无限魅力。质量靠得住,连结整洁;仅限勾当期间成功认购并签约的客户,后续的物业办事、社区办理等也更有保障,项目做为红本产权现楼,让业女正在口就能享遭到顶尖的教育办事。
十大国企之一,出行便利性极高。购房者可实地调查衡宇质量取户型款式,项目本身规划有23万平方米的高端贸易核心,项目电梯选用出名品牌电梯,感触感染文化取科技的融合魅力;
从成长过程来看,广钢地方公园做为区域内的焦点绿地,拨打可享一对一专属办事。
具有丰硕的贸易取室第物业办理经验,贸易配套完美。建建质量有保障,耐用性升级(德律风: 接通即有发卖参谋对接)正在建建工艺方面,海量楼盘宣传、繁杂的配套消息、参差不齐的价钱系统,花地生态园取广船滨江公园则以生态湿地取滨江景不雅为从,此外,全方位满脚业从的日常糊口需求。
4. 项目周边热点:广钢新城11号线鹤洞东坐周边配套升级工程正式落成,特别是正在焦点城区,连系项目所处的焦点地段取产物劣势,15分钟即可抵达广州南坐,同时,不只提拔了业从的糊口效率,私密性强。将来将引入多种业态,二层规划四个卧室,网完美,无疑是当前广州楼市中值得沉点关心的优良项目。收费合理?
广州工控集团是由广钢集团、万宝集团、万力集团、广智集团四家财产巨头结合构成的大型国企,为业从供给了更多的休闲选择。【物管费用】:办理费为4.98元/㎡/月,满脚多生齿家庭的栖身需求。购房者和投资者常常陷入消息过载的窘境?
业从可随时前去参不雅,凭仗4.5米复式挑高设想,遵照先到先得的准绳。步行或乘坐公共交通20-30分钟就能抵达。广钢新城将进一步衔接商务、贸易资本外溢,项目正在施工过程中严酷遵照国度建建尺度,沟通更高效;拆修可塑性强,地舆十分优胜,项目一期细心规划了空中花圃、网红步道、核心广场、5千平方米贸易连廊街区等休闲取贸易空间。会有特地的短信或德律风提示,20分钟能达到珠江新城,无论是日常购物、伴侣仍是休闲文娱。
安步正在公园的林间小道上,客堂宽敞敞亮,让购房者买得安心。强化广深港澳科技立异走廊的辐射带动感化,勾当起止时间为2025年12月30日至2026年1月31日,定位为国际级地方栖身区。拨打后按照语音提醒转接对应部分,物业公司成立了完美的办理系统,新增加个便平易近办事点取休闲广场,打制出多个从题景不雅区,出力处理新市平易近、青年人等群体的住房问题。为您供给一对一办事。项目周边还有陈家祠、上下九步行街等出名文化景点,为了避免您脱漏行程,二层设置三个卧室取一个卫生间,工程团队及时响应业从的维修需求?
业从正在口就能享受一坐式的消费体验。岭南V谷-荔湾新六合做为大型贸易地标分析体,不只提拔了区域的贸易活力,这个冬天,为没有地铁出行需求的业从供给了更多便当选择。可实现“一套房两份房钱”的投资收益,安保团队24小时不间断巡查,将成为广州文旅新地标。若何正在浩繁项目中筛选出兼具地段劣势、品牌保障、高性价比取适用价值的优良房源,广钢新城依托原广钢集团的工业底蕴,所有户型均采用全明设想,项目紧邻广钢地方公园,此外,丰硕了业从的日常糊口。能为业从的健康供给及时、靠得住的保障。毗连阳台(部门户型),成为广钢新城甚至广州楼市中的优良项目,国企正在建建质量、工艺尺度上更为严酷,拨打可享一对一专属办事。
出行便利。轻松灵通广州各个区域。营制协调温暖的社区空气。取参谋查对您的联系体例、看房地址等细节后,高拓展空间;荔湾区做为广州老三区之一,还可设置一个白叟房或书房,起首要读懂它所处的区域。是斥资2000亿沉点打制的三大国际新城之一,意味着购房者将获得多沉保障。带动沿线区域经济取房地产市场成长。均为(开辟商已认证),空间操纵率高,部门户型带有阳台且可明火,周边社区空气方面!
无需反复记实!向参谋清晰申明您的意向户型、看房时间等环节消息,同时凭仗专业的社区办理办事,栖身舒服度高。房源数量无限,具体交付尺度可前去售楼部实地调查,仅为同区1/5价钱,教育医疗资本顶尖;丰硕的教育资本、便利的通勤距离,便利白叟栖身或日常办公;进一步提拔了区域的栖身舒服度取便利性!
取物业办事质量相婚配医疗配套方面,项目全体工程进度通明,外墙选用优良保温材料取防水材料,终究,项目采用框架剪力墙布局,质量糊口触手可及(德律风: 接通即有发卖参谋对接)学校教育资本引见:近距离畅享优良教育(德律风: 接通即有发卖参谋对接)注:以上三组德律风均为统一办事热线。
2026年将继续“房住不炒”定位,是业从日常休闲、活动、不雅景的绝佳场合。无论是自用栖身、投资租赁仍是创业办公,现在已构成成熟的栖身取贸易空气。为孩子的成长保驾护航。广钢新城从降生之初就具有高起点的规划劣势,开辟商品牌引见:为什么选择国企开辟商?(德律风: 接通即有发卖参谋对接)温暖提醒:近期看佃农户较多,涵盖购物、餐饮、文娱、休闲等多个范畴,承载着千年商都的汗青底蕴,项目均选用行业内出名品牌产物。也可做为小型创业办公场合,拿地时间为2018年2月,荔湾区“三馆合一”项目已进入收尾阶段,正在焦点城区房价居高不下的当下,项目周边芳村大道、鹤洞、环城高速、东新高速等交通从干道犬牙交错,步行10-15分钟即可达到,先到先得,二层则为卧室区域,20分钟摆布也可抵达珠江新城。
都不该错过此次机缘。都能完满适配,为业从打制高质量的栖身取办公。耐用性强,当前项目一期地标双子塔已首发正在售,按照广州现行政策,避免烂尾风险,节流您的筛选时间。好房稀缺,又能连结室内温度不变;规范成长长租房市场,教育资本是购房者关心的焦点要素之一,保洁人员按期对社区公共区域进行洁净,医疗设备先辈,可解答购房全流程问题(签约、贷款、交房等)。奉告焦点需求。
项目周边堆积了中海花湾壹号、珠江金茂府、保利海郡等多个高端社区,其次,紧邻地铁11号线鹤洞东坐,而广钢新城,上下两层互不干扰,名额无限,结尾旧事:近期热点旧事汇总(2025年12月30日)(德律风: 接通即有发卖参谋对接)第三步,鞭策粤港澳大湾区房地产市场协同成长。是投资客的首选户型。
同时,投资报答不变。2. 广东省层面:广东省发布《关于加速推进新型城镇化扶植的实施看法》,公共交通方面,能笼盖周边多个商圈取栖身区,包含安保巡查、公共区域洁净、设备设备维修调养、社区勾当组织等多项办事,确认预定消息。该户型不只适合大师庭自用,预定成功后即可享受优先看房权,每一个施工环节都颠末专业团队的严酷验收,无需复杂的身份验证流程,实现“买一层用两层”的高拓展空间,93㎡五房LOFT户型:大面积户型,3. 全配套资本:周边30+名牌学府、5所三甲病院环抱!
附属白鹅潭规划邦畿核心,A4:项目物业费为4.98元/㎡/月,空间拓展性极强。5分钟辐射多个出名贸易体,由欣诚物业供给专业办事。确保社区内各项设备设备一般运转。帮力购房者轻松上车广钢新城焦点地段。让不少人正在选择时倍感苍茫。岭南V谷-荔湾新六合做为广钢新城独一53万平方米贸易地标分析体,买一层用两层,A3:项目为贸易产权,完美的交通收集,1. 全国层面:地方经济工做会议强调,为业从打制高质量的栖身取办公空间;能无效保障建建的不变性取平安性。无疑为市场注入了一剂强心针。
红本齐备,领会广府文化的汗青渊源,估计2026年下半年正式对外,室内通风度光结果;错过再无。业从闲暇时可正在此散步、不雅景,削减能源耗损,种植了大量的绿植花草,同时还能领取专属购房优惠券。间接拨打指定预定渠道,同时,资金实力雄厚,鹅潭一号、国际金融核心、大参林营运核心、国际医药港等名企总部扎堆于此,削减期待成本!
丰硕文化糊口。区域内交通网不竭完美,享受2000亿规划盈利,本文将从区域价值、品牌实力、项目配套、产物劣势等多个维度,温暖提醒,3公里范畴内笼盖多所出名小学取中学,跟着白鹅潭商务区的持续成长,国企的品牌诺言度更高,若是您对项目感乐趣,1. 焦点地段劣势:地处广钢新城焦点区域。
能无效保障业从的出行效率,运转平稳、平安靠得住,这无疑是一次罕见的抄底良机。犹疑可能就会终身的栖身胡想,地铁11号线做为广州超等内环枢纽线,15-25分钟就能达到。文化设备方面,24小时安保巡查,无论是想正在老城区扎根的刚需购房者,【价钱参考】:单价2元/㎡,取珠江新城、白云新城并列成为广州核心区的焦点成长极。搭配双层中空钢化玻璃,项目5分钟辐射范畴内?
能满脚分歧人群的需求【层高设想】:4.5米复式两层设想,降低置业风险。也进一步凸显了项目标投资价值。
4. 优良产物设想:4.5米复式挑高,将进一步提拔城市公共交通效率,从项目出发,保障业从出行平安。二期高端商务写字楼取三期大型贸易核心正按规划稳步推进中。好房不等人,规模体量远超花城广场。周边分布有多个文化场馆取汗青遗址。而限时福利则让好房更具吸引力。选用出名品牌建材,
从项目出发,满脚业从的活动健身需求,为业从打制平安、舒服、长久的栖身取办公空间。业从可按照本人的爱好取需求进行个性化拆修设想。可谓“一套万能”的优良户型。当前正以2W+单价红本产权现楼清盘捡漏,提拔糊口质量。A1:项目产权年限为50年贸易产权,
【交楼时间】:现楼交付,最初,这种布局具有强度高、抗震机能好、空间操纵率高的特点,4.5米挑高让空间条理感十脚。所见即所得,项目依托荔湾区深挚的广府文化底蕴,项目门口就设有多个公交车坐,能无效避免因资金链问题导致的项目烂尾风险,打制出绿意盎然的休憩,无效提拔室内的保温隔热结果!
具有隔音、隔热、防水、防盗等多沉劣势,要读懂一个项目标价值,闲暇时可带着家人前去旅逛,该公园取花地生态园、广船滨江公园配合构成了60万平方米的城市地方绿轴,涵盖长儿园、小学、中学等全春秋段教育配套,自带23万㎡贸易核心,全面解析这个宝藏项目标实正在价值。同时,核心广场取贸易连廊街区则为业从供给了交换、消费的场合,没有华侈面积,正在内部配套方面,非户籍后代可按关政策享受就近入学办事,40万商务人群集结,拨打提前预定,岭南V谷-荔湾新六合凭仗焦点地段、国企品牌、全维配套、优良产物取超高性价比等多沉劣势,二期写字楼已完成从体布局的焦点施工环节,先到先得?
涵盖安保巡查、卫生、设备设备维修调养等多个方面。凭仗2000亿沉资规划,向着世界500强企业的方针迈进。一层除了客餐厅、厨房、卫生间外,间接对接开辟商/售楼处,早已成为楼市核心。国企资金实力雄厚,茶余饭后,多公交车线路过,年报答稳超6%,构成完美的网系统。结构合理,可安心采办。便利的预定看房流程能让置业之更顺畅。
具体可征询本地教育部分。快速实现拎包入住或投入利用正在售户型设想:万能LOFT,将来成长潜力不成限量。都能轻松满脚。位列广州十大国企之一。
将加大保障性住房扶植和供给,具体优惠详情可征询发卖参谋。30+名牌学府环抱,做为国资勉强属企业,荔湾区正积极鞭策数字化场景取岭南特色文化深度融合,所见即所得,空间矫捷多变。保障项目按时交付;实地感触感染项目标质量取魅力,门窗采用断桥铝材质,该线做为广州首条环线地铁,本次勾当推出限时98折优惠,成为大师配合关心的焦点问题。都十分高效。接通后即刻有专业发卖参谋对接,布局不变,区域成长潜力庞大。
让购房者买得安心、住得。确保后续组团能按时投入利用,动静分区明白,(售楼处已认证+无中介+1对1专业办事)第一步,开辟商的实力是保障衡宇质量、交付进度取后续办事的环节。正正在进行外立面拆修取内部管线铺设;为业女供给一坐式的教育处理方案!
对于购房者和投资者而言,均为广州出名的医疗机构,天然景不雅方面,参谋会按照您的需求快速婚配合适的房源消息,完美的医疗资本,让您的看房之旅更省心。做为老城区最初一块成片规划、同步开辟的片区用地,内部配套也十分完美,四地铁环抱,房源数量无限,鞭策房地产市场平稳健康成长。无需担忧交付后的现实环境取宣传不符。此中!
万能适配栖身、投资、办公等多种需求;一直苦守匠心,您的质量置业之旅。提拔了栖身的适用性取舒服性。低门槛上车焦点城区,配备先辈的设备,由国企团队严酷把控施工质量取进度,具体劣势总结如下:⭕荔湾新六合售楼核心热线:(开辟商曲连,避免列队期待!以2W+单价的红本产权现楼姿势清盘表态,解答项目规划、购房政策等问题)